Este site utiliza cookies para permitir a mudança de língua e o armazenamento dos seus imóveis favoritos. Ao utilizar este site, concorda que o mesmo utilize cookies.

Pesquisa de Imóveis

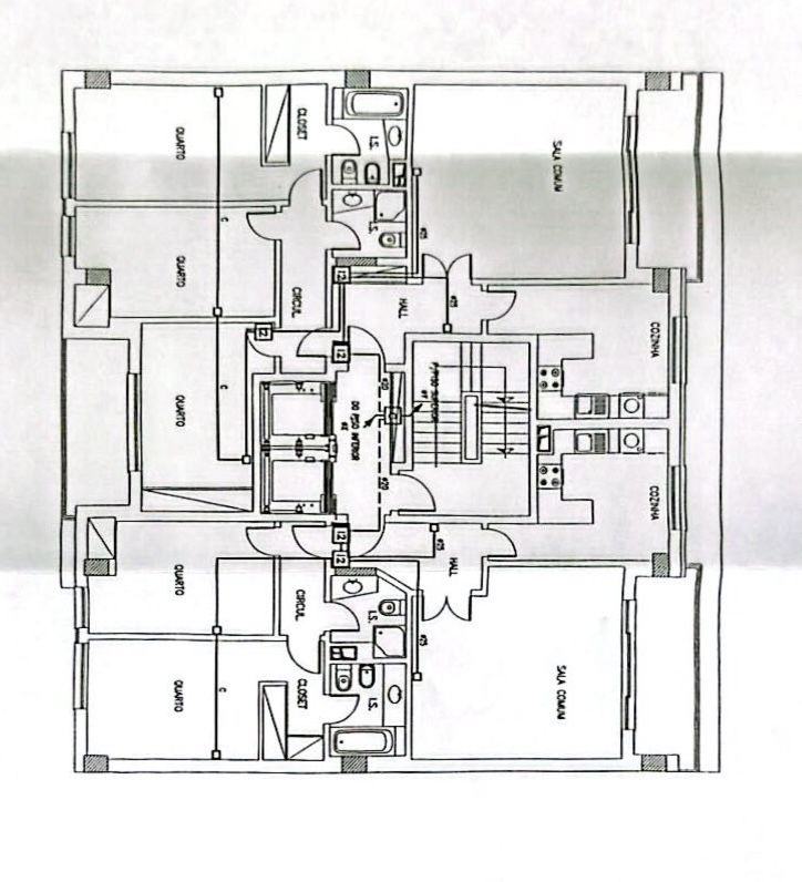
Apartamento T3 Colinas do Cruzeiro, Odivelas 4 Lugares de Parqueamento

565.000€


Partilhar


Referência

212619

Natureza

Venda

Tipo de Imóvel

Apartamento

Tipologia

T3

Estado

Excelente

Certificado energético

C

Ano

2006

Distrito

Lisboa

Concelho

Odivelas

Freguesia

Odivelas

Código Postal

2675

Área Útil

118.1 m2

Área Bruta

150 m2

Área de Terreno

0 m2



Apartamento T3 | Colinas do Cruzeiro, Odivelas | 150 m² | 4 Lugares de Parqueamento

Este apartamento T3 nas Colinas do Cruzeiro é mais do que um imóvel — é um espaço pensado para viver em família, com conforto, funcionalidade e qualidade em cada detalhe.

Com duas frentes e uma exposição solar privilegiada, a luz natural percorre toda a casa ao longo do dia, criando ambientes acolhedores e harmoniosos. A vista totalmente desafogada reforça a sensação de tranquilidade, mesmo estando numa das zonas mais completas e valorizadas de Odivelas.

A zona social apresenta uma sala ampla, ideal para momentos em família ou para receber amigos, com áreas bem definidas entre estar e jantar. A ligação às varandas fechadas com vidro panorâmico retrátil permite prolongar o espaço interior, criando uma zona versátil que pode funcionar como área de lazer, escritório ou espaço de convívio, sempre com abundante luz natural.

A cozinha foi pensada para o dia a dia familiar, totalmente equipada com:
•Máquina de lavar roupa
•Máquina de lavar loiça
•Placa de indução
•Forno
•Esquentador
•Sistema de aspiração central

Funcional, prática e organizada, oferece tudo o que é necessário para uma rotina eficiente e confortável.

Na zona privada, os quartos com roupeiros embutidos proporcionam arrumação e conforto, ideais para famílias que valorizam organização e espaço. O ambiente é tranquilo e bem distribuído, permitindo momentos de descanso com total privacidade.

O apartamento encontra-se equipado com ar condicionado em todas as divisões e aquecimento central, garantindo bem-estar durante todo o ano. A caixilharia dupla assegura um excelente isolamento térmico e acústico, reforçando a qualidade de vida no interior do imóvel.

Para maior segurança, dispõe de porta de alta segurança com duas fechaduras.

Conta ainda com quatro lugares de parqueamento — uma mais-valia significativa — sendo um deles atualmente adaptado como arrecadação, oferecendo espaço extra para arrumação.

Inserido em prédio com dois elevadores, este apartamento alia comodidade e acessibilidade.

A localização é um dos seus grandes destaques: nas Colinas do Cruzeiro, uma zona moderna, organizada e altamente procurada em Odivelas, com tudo à porta — escolas, supermercados, comércio local, restaurantes, serviços e acessos rápidos a Lisboa. Ideal para famílias que procuram qualidade de vida sem abdicar da proximidade à cidade.

Um apartamento onde o conforto, o espaço e a localização se unem para criar o cenário perfeito para viver em família.

*Algumas imagens apresentadas incluem sugestões de decoração geradas por Inteligência Artificial, com o objetivo de demonstrar o potencial do espaço. O imóvel é comercializado sem o mobiliário ilustrado.
Edificio
GeraisNº de Frentes :2
ElevadorNº de Elevadores:2
Tipo de EmpreendimentoHabitação:Sim
Zona
GeraisAeroporto:Sim
GeraisAuto-Estrada:Sim
GeraisMetro:Sim
GeraisTransportes públicos:Sim
CentralidadeCentro da cidade:Sim
ProximidadeBancos:Sim
ProximidadeBombeiros:Sim
ProximidadeCentros comerciais:Sim
ProximidadeClínicas:Sim
ProximidadeEscolas:Sim
ProximidadeFarmácias:Sim
ProximidadeGinásios:Sim
ProximidadeHospitais:Sim
ProximidadeJardins:Sim
ProximidadeJardins de infância:Sim
ProximidadePadarias:Sim
ProximidadePolícia:Sim
ProximidadeServiços públicos:Sim
ProximidadeSupermercados:Sim
AcessosAlcatrão:Sim
AcessosCalçada:Sim
Geral
GeraisNº de Casas de Banho:2

Este imóvel não tem áreas definidas.

Contactar Imobiliária

*Preenchimento obrigatório
Ao clicar em 'Enviar', declara que aceita a nossa Política de Privacidade.